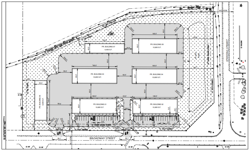
1100 Broadway Street Wrightstown Wi. New facility currently under construction

IMG_3920.JPG

Site plan

Light Industrial / Storefront Shops: 5 Buildings, 30 Units, 54,000 sq ft

Large Storage Suites: 2 Buildings, 16 Units, 14,400 sq ft

wrightstown layout.PNG